產品概述
通常閥門在開關過程,由于環(huán)境不同和壓力升高,會增加閥門開啟的扭矩,從而引起閥座磨損和驅動裝置增大。軌道球閥的閥芯是通過機械收縮動作裝置增大。軌道球閥的閥芯是通過機械收縮動作拉離閥座,閥芯旋轉時不接觸閥座,做無磨擦傳動,當閥門關閉時,靠機械增壓來密封,這意味著可以使用經濟的驅動裝置,同時能保證有足夠的驅動器推力來 開關閥門。 由于軌道球閥獨特的結構設計,做到開關無磨損、關斷性能好等特點,能適合各種苛刻工況的要求。防火型設計、全金屬結構設計,能適應低溫-2001至最高+600°C的各種工作溫度,以及含顆粒、纖維等工況的特殊要求。 標準的抗硫型軌道閥,閥門接觸介質的材料都是按美國腐蝕工程師協(xié)會標準NACE MR01-75的要求進行設計,并在制造過程中作嚴格的質量控制。 GQ47H、GQ47F型手動上裝式軌道球閥特點:傳統(tǒng)的球閥,無論是浮動式或固定式,球體與閥座始終接觸,開關扭矩大,密封面容易損傷,軌道球輪著啟閉時,球體先偏轉角,然后轉動,開關全過程中球體與閥座脫離,故閥座不會被擦傷,并且啟閉扭矩小。GQ47H、GQ47F型手動上裝式軌道球閥廣泛適用于城建、化工、冶金、石油、制藥、食品、飲料、環(huán)保等。
零部件材料
GQ47H、GQ47F型手動上裝式軌道球閥主要零部件材料| 零件名稱 | 材料 |
| 閥 體 | WVB | ZG1Cr5Mo | 18-8CrNi | 18-12CrNiMo |
| 閥 蓋 | WVB | ZG1Cr5Mo | 18-8CrNi | 18-12CrNiMo |
| 閥 桿 | 2Cr13 | 38CrMoA1 | 1Cr18Ni9Ti | 1Cr18Ni12Mo2aTi |
| 球 體 | WCB+HCr | 1Cr5Mo | 18-8CrNi | 18-12CrNiMo |
| 閥 座 | PTFE/13Cr/CrNi SS+STELLITE |
| 螺 柱 | B7/35CrMoA | 1Cr17Ni2 |
| 螺 母 | 2H/45 | 2Cr13 |
| 填 料 | PTFE/增強柔性石墨 |
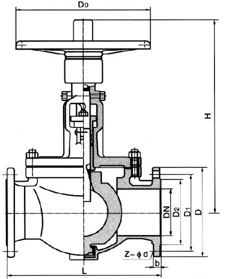
連接尺寸

GQ47H、GQ47F型手動上裝式軌道球閥PN1.6~2.5 MPa主要連接尺寸(mm)| DN | 15 | 20 | 25 | 32 | 40 | 50 | 65 | 80 | 100 | 125 | 150 | 200 | 250 | 300 | 350 | 400 | 450 | 500 |
| L | 130 | 150 | 160 | 180 | 200 | 230 | 290 | 310 | 350 | 400 | 480 | 600 | 730 | 850 | 980 | 1100 | 1200 | 1250 |
| H1 | 220 | 230 | 240 | 260 | 307 | 360 | 410 | 483 | 512 | 543 | 581 | 617 | 672 | 723 | 758 | 791 | 828 | 870 |
| H2 | 450 | 486 | 525 | 550 | 610 | 640 | 640 | 675 | 710 | 740 | 820 | 905 | 955 | 990 | 1050 | 1100 | 1270 | 1450 |
| H3 | 415 | 455 | 500 | 535 | 580 | 605 | 605 | 620 | 640 | 685 | 735 | 850 | 900 | 920 | 1100 | 1250 | 1340 | 1555 |
| H4 | 370 | 400 | 440 | 460 | 480 | 500 | 550 | 600 | 650 | 713 | 760 | 820 | 875 | 930 | 962 | 1020 | 1285 | 1625 |
GQ47H、GQ47F型手動上裝式軌道球閥PN4.0MPa主要連接尺寸(mm)| DN | 15 | 20 | 25 | 32 | 40 | 50 | 65 | 80 | 100 | 125 | 150 | 200 | 250 | 300 | 350 | 400 | 450 | 500 |
| L | 130 | 150 | 160 | 180 | 200 | 230 | 290 | 310 | 350 | 400 | 480 | 600 | 730 | 850 | 980 | 1100 | 1200 | 1250 |
| H1 | 230 | 240 | 260 | 280 | 320 | 360 | 436 | 492 | 527 | 607 | 649 | 701 | 750 | 750 | 790 | 832 | 875 | 910 |
| H2 | 486 | 525 | 550 | 610 | 640 | 640 | 675 | 710 | 740 | 820 | 905 | 955 | 990 | 105 | 1100 | 1270 | 1450 |
|
| H3 | 455 | 500 | 535 | 580 | 605 | 605 | 620 | 640 | 685 | 735 | 850 | 900 | 920 | 1100 | 1250 | 1340 | 1550 |
|
| H4 | 400 | 440 | 460 | 480 | 500 | 550 | 600 | 650 | 713 | 777 | 835 | 890 | 950 | 980 | 1040 | 1305 | 1650 |
|